Inhalt anspringen

Stadt Coburg

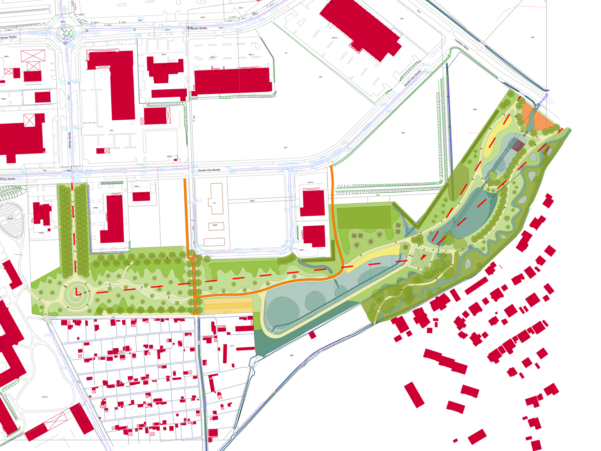
Park der Arten

Der Park der Arten auf der Lauterer Höhe wird zur grünen Lunge des Coburger Nordens. Mit artenreichen Wiesen, Biotopen, einem Klimalehrpfad und zwei markanten Pyramiden schafft er Raum für Erholung, Bildung und Artenvielfalt – und ist gleichzeitig klimafreundliche Stadtentwicklung.

Das Konzept

Auf der Lauterer Höhe entsteht mit dem Park der Arten ein ganz besonderer Freiraum für Coburg. Er ist ein wichtiger Baustein im klimawandelbedingten Umbau der Stadt und soll gleich mehrere Funktionen erfüllen: Er wird zur grünen Lunge für den Coburger Norden, ein attraktiver Erholungsraum für Sie – und auch ein besonderer Park für die Patient*innen des neuen Klinikums.

Darüber hinaus verbessert der Park die Vernetzung von Grünflächen in der Stadt. So entstehen neue Lebensräume für Tiere und Pflanzen und die Artenvielfalt wird gestärkt.

Förderung

Der Bau des Parks der Arten wird gefördert durch
die Bundesrepublik Deutschland

vertreten durch
das Bundesministerium für Wohnen, Stadtentwicklung und Bauwesen

Baufachliche Mitwirkung durch
die Landesbaudirektion Bayern.

Erläuterungen und Hinweise

Bildnachweise

  • Stadt Coburg
  • Stadt Coburg/Stammberger
  • Stadt Coburg/Stammberger
  • Stadt Coburg
  • Stadt Coburg
  • Stadt Coburg
  • Stadt Coburg
  • Stadt Coburg
  • Stadt Coburg
  • Stadt Coburg